Krashi Logo Krashi Logo
  • Головна
  • Карта
  • Нове
  • Про нас
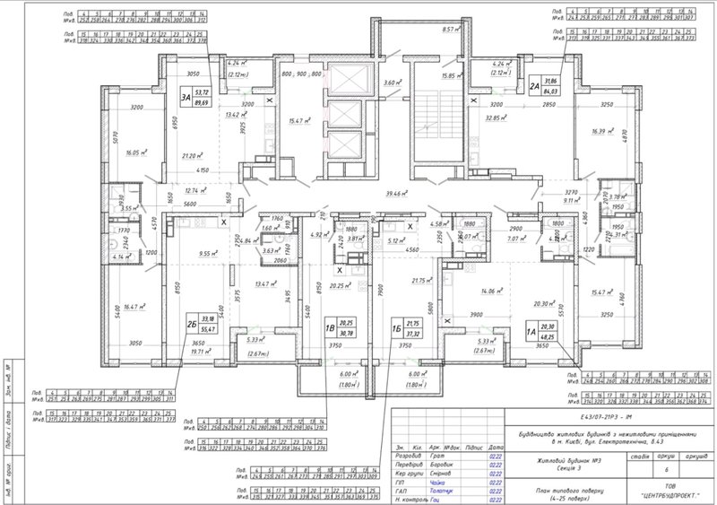
ДБК-ЖИТЛОБУД ЖК ДЕСНЯНСЬКИЙ, КВАРТИРА З ОЗДОБЛЕННЯМ

місто Київ, вул.Електротехнічна 43

Галерея

Опис

ДБК-Житлобуд, системний девелопер повного циклу з 1973 року. За час роботи введено понад 5,9 млн м² житла, що становить близько 15% житлового фонду Києва. Ключова конкурентна перевага, власний завод залізобетонних конструкцій, модернізований у 2021 році з використанням німецьких технологій, що забезпечує контроль якості та прогнозовані строки будівництва. ЖК «Деснянський», проєкт, орієнтований на найбільш ліквідний сегмент ринку: квартири з готовим оздобленням. У базову комплектацію входять лінолеум, шпалери, міжкімнатні двері , формат «заїжджай і живи», без додаткових витрат на ремонт та з можливістю швидкого заселення і роботи з іпотечними програмами. Перший будинок заплановано до введення в експлуатацію у I кварталі 2026 року, другий, у IV кварталі 2026 року, третій ,у III кварталі 2027 року. Житловий комплекс розташований у Деснянському районі Києва, на межі масиву Троєщина, поруч з озером Алмазне та Молодіжним парком площею майже 10 га. Локація поєднує близькість до природних зон із повноцінною міською інфраструктурою: у пішій та транспортній доступності школи (№238, 242, 248, 277, 282), гімназія, коледж, поліклініка, діагностичний центр, логістичні сервіси, торговельні об’єкти та сервісна інфраструктура для автомобілістів. Назва комплексу відсилає до річки Десна, найбільшої притоки Дніпра, що підкреслює ідею балансу між міським середовищем і природою. ЖК «Деснянський», це прагматичне рішення для покупців і інвесторів, які цінують прогнозованість, готовність продукту та надійність девелопера.

Локація

  • Адреса:місто Київ, вул.Електротехнічна 43
  • Місто:Деснянський район